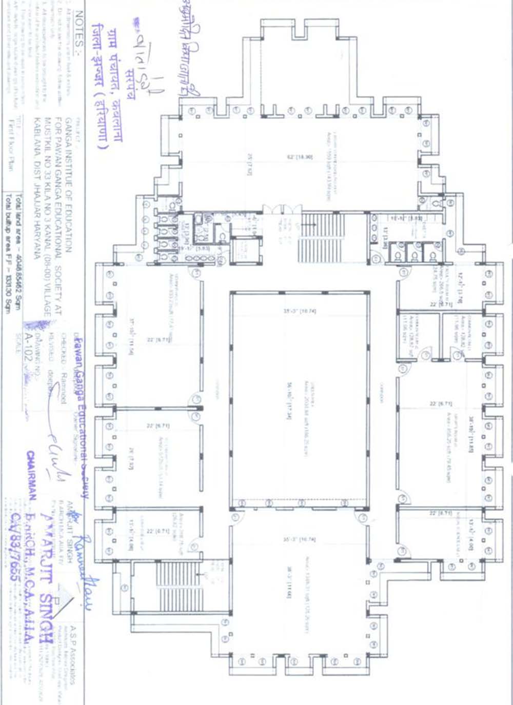
NCTE Enclosed Affidavit Copy of Application Form Infrastructure-Land Building Sanctioned Program Recognition Letter B.Ed Recognition Letter M.Ed Add-on Facilities facilities added during last quarter: 10 Journals subscribednew water cooler installedfire safety system installed